Description
This beautifully designed 1-bedroom apartment is located on the 3rd floor offering a quiet and private view into the inner courtyard. This stylish home combines modern luxury with warm, homey elements—perfect for comfortable everyday living in a peaceful urban setting.
The apartment features a wooden floor throughout, adding warmth and character, complemented by muted tones, subtle color accents, and elegant silver-toned décor elements that create a calming, sophisticated atmosphere.
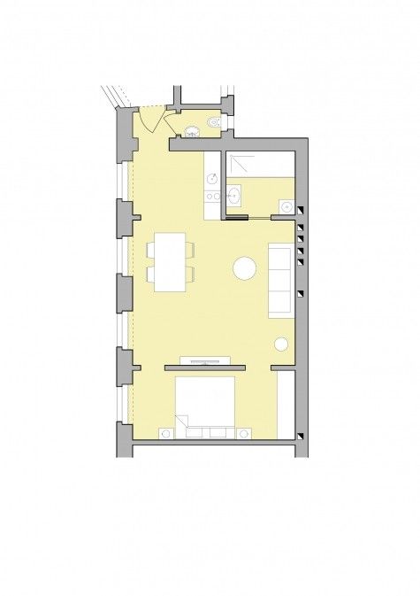
Upon entering, you’re welcomed into a bright open-plan living room and kitchen. The light-colored kitchen is fully equipped with everything you need, including a large fridge with freezer, dishwasher, and other essentials—designed for convenience and functionality.
The living area features a large wooden table, ideal for dining, entertaining, or working from home. A striking red sofa acts as a stunning visual centerpiece, adding a vibrant touch to the muted color scheme. A smart TV is mounted above a sleek wall shelf, perfect for cozy evenings in.
The bedroom is separated by a modern wall with sliding doors, accessible from both sides of the bed. Inside, you’ll find a self-made double bed upholstered in a rich dark blue fabric, creating a cozy and serene environment for restful nights. Window blinds allow you to darken the room as needed, and there’s a wardrobe for convenient storage.
The apartment includes a compact yet modern bathroom with a rain shower and washing machine, while the toilet is located in a separate room for added privacy and comfort.
Area Highlights
Nestled in Vienna’s vibrant 9th District, this apartment is surrounded by cultural landmarks, shopping streets, and bustling city life. Just a few steps away from the Medical University of Vienna and the University campus Altes AKH, it offers unparalleled proximity to educational institutions. The neighborhood is filled with local shops, cafés, and restaurants, making it a convenient place for daily living.
With a tram stop only a short walk away, you can reach the city center in just 3 minutes. Alserstraße provides direct access to the historic center of Vienna, and the iconic Ringstraße is just two tram stops away. From there, you can easily explore popular destinations such as Schottentor, Graben, Kärntner Straße, and Stephansplatz.
This apartment’s central location puts Vienna’s best museums, galleries, historic monuments, and cultural attractions right at your doorstep, making it the ideal choice for anyone looking to experience the best of the city.














